IGLESIA Y CENTRO PARROQUIAL SAN ANTONIO DE PADUA EN OVIEDO - CUENCA ARQUITECTOS SCP

Almacenamos o accedemos a información en un dispositivo, tales como cookies, y procesamos datos personales, tales como identificadores únicos e información estándar enviada por un dispositivo, para anuncios y contenido personalizados, medición de anuncios y del contenido e información sobre el público, así como para desarrollar y mejorar productos.
Con su permiso, podemos utilizar datos de localización geográfica precisa e identificación mediante las características de dispositivos. Puede hacer clic para otorgarnos su consentimiento a nosotros para que llevemos a cabo el procesamiento previamente descrito. De forma alternativa, puede acceder a información más detallada y cambiar sus preferencias antes de otorgar o negar su consentimiento. Tenga en cuenta que algún procesamiento de sus datos personales puede no requerir de su consentimiento, pero usted tiene el derecho de rechazar tal procesamiento. Sus preferencias se aplicarán en toda la web. Más información.

Reducir

IGLESIA Y CENTRO PARROQUIAL SAN ANTONIO DE PADUA EN OVIEDO

IGLESIA Y CENTRO PARROQUIAL SAN ANTONIO DE PADUA EN OVIEDO

PROYECTO
   XII 2006
OBRA    VIII 2007 - III 2009
PROMOTOR    ARZOBISPADO DE OVIEDO
APAREJADOR    ANTONIO GONZÁLEZ LLACA
CONSTRUCTOR    ESYCO S.A.
PRESUPUESTO    1.495.040,00 €
SUPERFICIE      
 1.927,56 m²
  • Fachada principal
  • Fachada posterior
  • Fachada centro parroquial
  • Detalle fachada presbiterios
  • Fachada columbario
  • Vista general interior
  • Coro
  • Presbiterio
  • Acceso columbario
  • Capilla
  • Planta primera
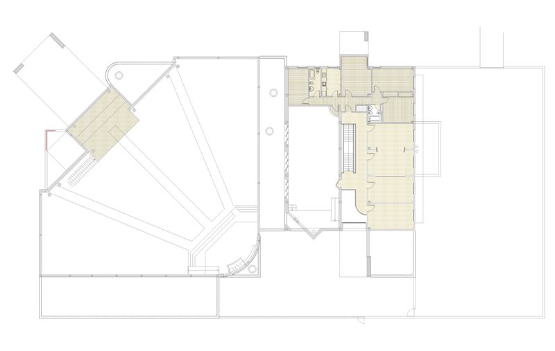
  • Planta baja
Otros contenidos relacionados

Contenidos relacionados